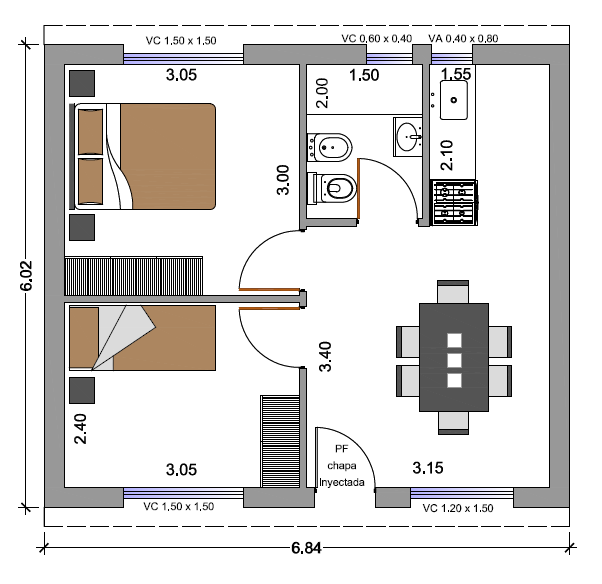
Modelo 1040

1,00 1,00 1.0 ARS

1,00


  • 1
    Baño

  • 2
    Dormitorios

  • 4
    Ambientes

  • 40.0 m²
    Superficie total
Ver plano

Vivienda de 40 metros cuadrados, dos dormitorios, cocina-comedor y baño.
Ideal para comienzo de proyecto, fácil de ampliar a futuro. Espacios amplios, dormitorios con capacidad para doble cama.

Vos ponés el terreno, nosotros construimos tu casa
El mejor momento para construir tu casa prefabricada con la empresa más confiable de la región
✅+2000 casas entregadas
✅ Diseños estandar y a medida
✅ +20 años de experiencia
✅ Oficinas en Rosario y Venado Tuerto
✅ Entrega mínima + financiación en cuotas fijas en pesos

Estamos para asesorate, escribinos.

Enviando...

Ocurrio un error enviando el correo, por favor envie el email desde su cliente de correo